VgV-Verfahren zur Vergabe der Planungsleistung „Grundschule Querum“

Ort: Braun­schweig
Datum der Bekannt­ma­chung: 01. Novem­ber 2021
Auf­trag durch:
Stadt Braun­schweig – Fach­be­reich Gebäu­de­ma­nage­ment
Leis­tun­gen: Archi­tek­ten­leis­tung, Trag­werks­pla­nung, Tech­ni­sche Gebäu­de­aus­rüst
Auf­trag erhal­ten: WELP­von­KLITZING, Braun­schweig | TGA: iwb inge­nieu­re Gene­ral­pla­nung GmbH & Co. KG, Braun­schweig | TWP: martens+puller Inge­nieur­ge­sell­schaft mbH, Braunschweig

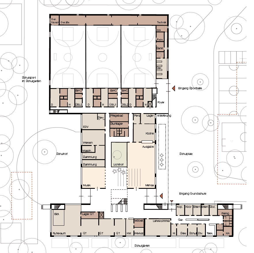
Die Stadt Braun­schweig plan­te den Neu­bau der Grund­schu­le Quer­um, da sich durch die Ent­wick­lung der umlie­gen­den Bau­ge­bie­te ein dau­er­haf­ter Bedarf für eine vier­zü­gi­ge Ganz­tags­grund­schu­le ergab. Da der Bestand kei­ne aus­rei­chen­den Erwei­te­rungs­mög­lich­kei­ten bot, soll­te die Schu­le voll­stän­dig neu errich­tet wer­den. Par­al­lel wur­de zusätz­li­cher Sport­flä­chen­be­darf fest­ge­stellt, sodass die vor­han­de­ne, abgän­gi­ge Sport­hal­le durch eine neue Drei­fach­sport­hal­le mit Tri­bü­ne ersetzt wer­den soll­te. Die­se soll­te sowohl den Anfor­de­run­gen der Grund­schu­le als auch den Bedar­fen der IGS die­nen und den bis­he­ri­gen Bus­pen­del­ver­kehr reduzieren.

Copy­right Bil­der: WELP­von­KLITZING, Braunschweig