VgV-Verfahren zur Vergabe der Planungsleistung „Wilhelm-Gymnasium“

Ort: Braun­schweig
Datum der Bekannt­ma­chung: 24. Janu­ar 2022
Auf­trag durch:
Stadt Braun­schweig – Fach­be­reich Gebäu­de­ma­nage­ment
Leis­tun­gen: Archi­tek­ten­pla­nung, Tech­ni­sche Gebäu­de­aus­rüs­tung
Auf­trag erhal­ten: ARGE Chris­toph Kei­ner Archi­tekt – eckert+honegger, Ham­burg | TGA: bow inge­nieu­re gmbh, Braunschweig

Die Stadt Braun­schweig plan­te die Sanie­rung und Erwei­te­rung des Wil­helm-Gym­na­si­ums, da die Wie­der­ein­füh­rung des Abiturs nach 13 Schul­jah­ren an bei­den Stand­or­ten zu einem erhöh­ten Raum­be­darf führ­te. Die bestehen­den Gebäu­de wie­sen bau­li­che und tech­ni­sche Män­gel auf, wes­halb eine umfas­sen­de Sanie­rung not­wen­dig war. Dabei soll­te die Bar­rie­re­frei­heit sicher­ge­stellt und ener­ge­ti­sche Ver­bes­se­run­gen im Sin­ne eines nach­hal­ti­gen Schul­be­triebs geprüft werden.

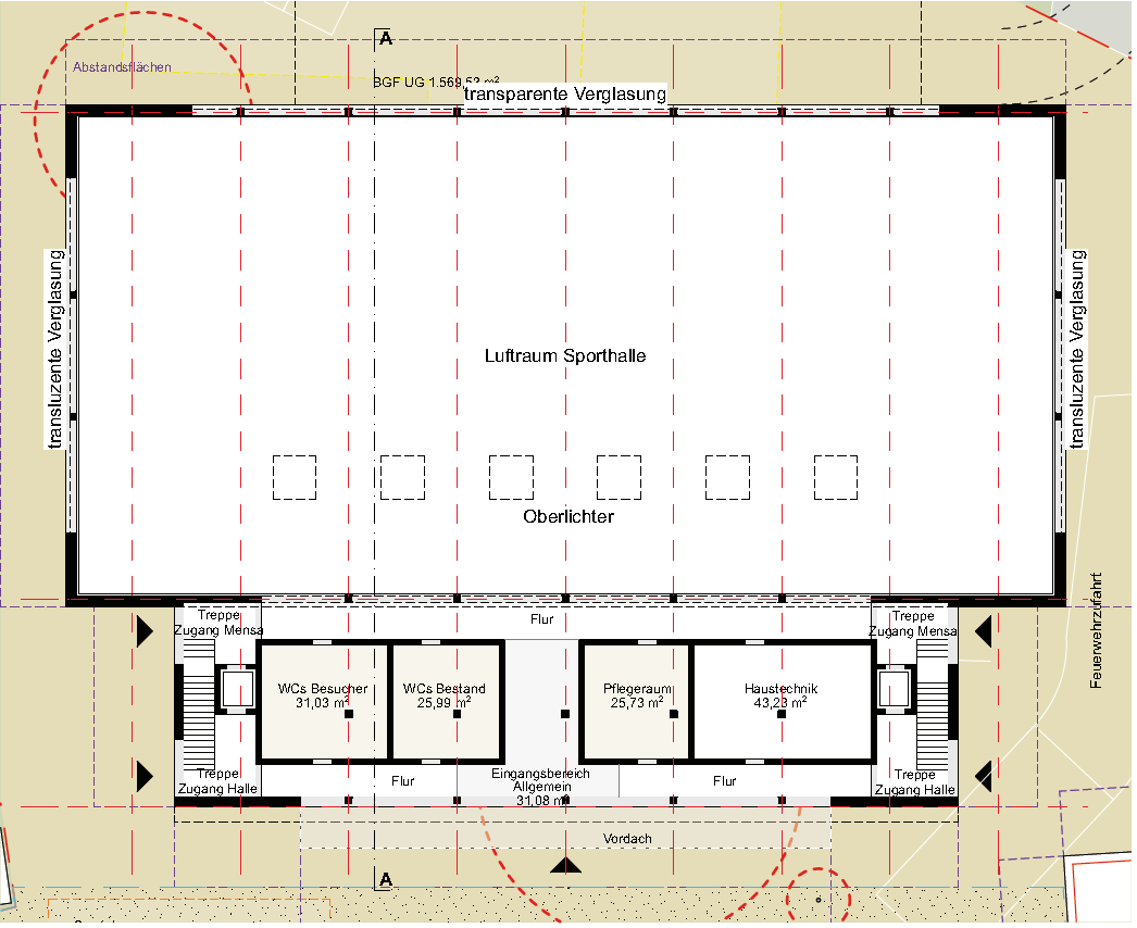
Gleich­zei­tig waren Erwei­te­rungs­bau­ten an bei­den Stand­or­ten vor­ge­se­hen. Am Haupt­stand­ort Leon­hard­stra­ße 63 soll­ten feh­len­de Unter­richts- und Dif­fe­ren­zie­rungs­räu­me, Fach­räu­me für Musik sowie Auf­ent­halts­flä­chen für Lehr­kräf­te geschaf­fen wer­den. Im Alt­ge­bäu­de waren dazu rund 1.000 m² umzu­wid­men. In der Außen­stel­le Leon­hard­stra­ße 12 war der Neu­bau einer 2‑Fach-Sport­hal­le geplant, um die Sport­in­fra­struk­tur zu ver­bes­sern und einen Teil der Ganz­tags­in­fra­struk­tur auf­zu­neh­men. Zusätz­lich soll­ten Men­sa, Fach­räu­me und Lehr­kräf­te­be­rei­che für die Jahr­gän­ge 5 bis 8 bereit­ge­stellt werden.

Bei­de Stand­or­te beher­bergt denk­mal­ge­schütz­te Gebäu­de, wes­halb Neu­bau­ten so gestal­tet wer­den soll­ten, dass das Erschei­nungs­bild der Denk­mä­ler respek­tiert wird. Wäh­rend der Bau­pha­se soll­te der Schul­be­trieb stö­rungs­frei fort­ge­führt werden.

Copy­right Bil­der: ARGE Chris­toph Kei­ner Archi­tekt – eckert+honegger, Hamburg