Architektenwettbewerb „Grundschule Heeseberg“ in Jerxheim

Ort: Jerx­heim
Datum der Aus­lo­bung: 09. Dezem­ber 2022
Aus­ge­lobt durch: Samt­ge­mein­de Heese­berg — Der Samt­ge­mein­de­bür­ger­meis­ter
1. Preis: Doh­le + Loh­se Archi­tek­ten GmbH, Braunschweig

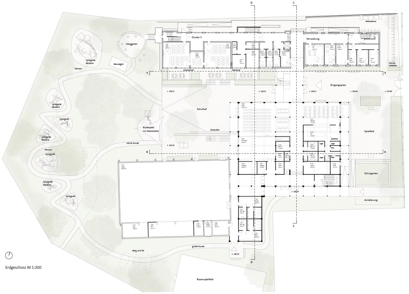
Auf­grund der Ein­füh­rung des Rechts­an­spruchs auf Ganz­tags­be­treu­ung ab 2026 beab­sich­tig­te die Samt­ge­mein­de Heese­berg die bestehen­de Grund­schu­le zur Ganz­tags­schu­le umzu­bau­en. Der neue Bau­kör­per soll­te aus­rei­chend Platz für eine zwei­zü­gi­ge Grund­schu­le mit der Mög­lich­keit der Ganz­tags­be­treu­ung bie­ten. Im Rah­men der Wett­be­werbs­auf­ga­be soll­te der zusätz­li­che Raum­be­darf über ca. 1.000 m² (u.a. Aula, Men­sa, Unter­richts­räu­me und Büros) gedeckt werden.

Ziel war die Schaf­fung eines Gebäu­des für eine Ganz­tags­grund­schu­le mit vor­aus­sicht­lich 12 schul­fä­hi­gen Klas­sen- bzw. Grup­pen­räu­men (davon drei Fach­un­ter­richts­räu­me und ein Dif­fe­ren­zie­rungs­raum) samt Aula und Turnhalle.

Copy­right Bil­der: Doh­le + Loh­se Archi­tek­ten GmbH