VgV-Verfahren zur Vergabe der Planungsleistung „Grundschule Schunteraue“

Ort: Braun­schweig
Datum der Bekannt­ma­chung: 15. August 2022
Auf­trag durch:
Stadt Braun­schweig – Fach­be­reich Gebäu­de­ma­nage­ment
Leis­tun­gen: Archi­tek­ten­leis­tung, Tech­ni­sche Gebäu­de­aus­rüst
Auf­trag erhal­ten: Doh­le + Loh­se Archi­tek­ten GmbH, Braun­schweig | TGA: IGH — Ing.-Büro Gies­ler, Braunschweig

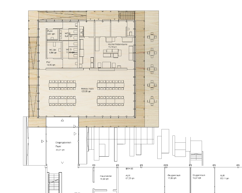
Die Stadt Braun­schweig plan­te den Aus­bau der Grund­schu­le Schun­ter­aue am Stand­ort Kra­len­rie­de zur zwei­zü­gi­gen koope­ra­ti­ven Ganz­tags­grund­schu­le, um den stei­gen­den Schü­ler­zah­len und dem Rechts­an­spruch auf Ganz­tags­be­treu­ung ab 2026/27 gerecht zu wer­den. Auf­grund eines Flä­chen­de­fi­zits waren Umbau­ten im Bestand sowie ein Erwei­te­rungs­neu­bau erforderlich.

Der Neu­bau soll die Men­sa mit Aul­a­funk­ti­on für bis zu 199 Per­so­nen sowie die Küche mit Neben­räu­men auf­neh­men, wäh­rend wei­te­re Ganz­tags­be­rei­che im Unter­ge­schoss des Bestands­ge­bäu­des ent­ste­hen. Die Pla­nung berück­sich­tigt bar­rie­re­freie Erschlie­ßung, mini­ma­le Ein­grif­fe im Bestand und die zukünf­ti­ge Mög­lich­keit eines Sport­hal­len­baus auf dem öst­li­chen Grund­stücks­be­reich. Wäh­rend der Bau­pha­se ist ein stö­rungs­frei­er Schul­be­trieb sicherzustellen.

Copy­right Bil­der: Doh­le + Loh­se Archi­tek­ten GmbH, Braunschweig