Architektenwettbewerb „Ersatzneubau Ateliergebäude Freie Kunst“ für die HBK in Braunschweig

Ort: Braun­schweig
Datum der Aus­lo­bung: 14. Juli 2022
Aus­ge­lobt durch: Staat­li­ches Bau­ma­nage­ment Braun­schweig
1. Preis: eis­feld engel Archi­tek­ten BDA, Hamburg

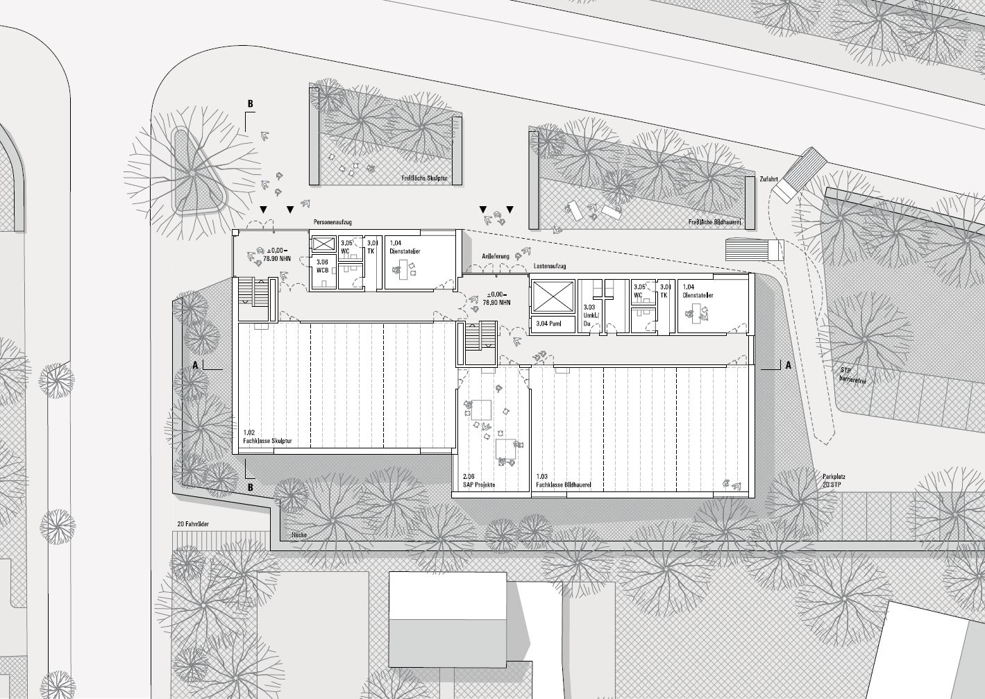
Gegen­stand der Pla­nung war ein Ersatz­neu­bau für den Stu­di­en­gang Freie Kunst. Es soll­ten vier Klas­se­n­ate­liers und die dazu­ge­hö­ri­gen Son­der­ar­beits­plät­ze ihren neu­en Platz erhal­ten. Die Ate­liers muss­ten sowohl für Arbeits‑, Lehr- und Aus­stel­lungs­si­tua­tio­nen geeig­net sein. Sie stel­len gro­ße, räum­lich mög­lichst varia­bel gestalt­ba­re, hal­len­ar­ti­ge Räu­me mit aus­rei­chen­der Decken­hö­he und beson­de­rer Belich­tung und Belüf­tung sowie guter Raum­akus­tik dar, wel­che jeweils an die Erfor­der­nis­se der ver­schie­de­nen Fach­klas­sen ange­passt sind.

Ein zen­tra­les Ziel der bau­li­chen Ent­wick­lung der Hoch­schu­le für Bil­den­de Küns­te (HBK) ist es, an zwei Stand­or­ten, die nur weni­ge Geh­mi­nu­ten von­ein­an­der ent­fernt sind, einen bedarfs­ge­rech­ten, räum­li­chen und orga­ni­sa­to­ri­schen Zusam­men­hang von Ate­liers, Werk­stät­ten, Lehr­räu­men, Ver­wal­tung, Gale­rie, Mon­ta­ge­hal­le, Biblio­thek, Aula und Men­sa her­zu­stel­len und ein funk­tio­na­les, mög­lichst flie­ßen­des Raum­kon­ti­nu­um ent­ste­hen zu las­sen. Durch den Neu­bau auf dem unmit­tel­bar angren­zen­den Grund­stück zum Cam­pus wird die räum­li­che Lücke zwi­schen den bei­den Stand­or­ten ver­dich­tet und die Idee der Cam­pus­uni­ver­si­tät gestärkt. Das Hoch­schul­le­ben an nur zwei Stand­or­ten zu kon­zen­trie­ren, führt zu räum­li­cher Nähe und kos­ten­sen­ken­den Syn­er­gien wie die Zen­tra­li­sie­rung von Serviceeinheiten.

Copy­right Bil­der: eis­feld engel Archi­tek­ten BDA