Architektenwettbewerb „Grundschule Osloß“ in der Samtgemeinde Boldecker Land

Ort: Osloß
Datum der Aus­lo­bung: 10. April 2025
Aus­ge­lobt durch: Samt­ge­mein­de Bol­de­cker Land – Der Samt­ge­mein­de­bür­ger­meis­ter
1. Preis: Kum­mer Lubk+Partner PartGmbB, Erfurt

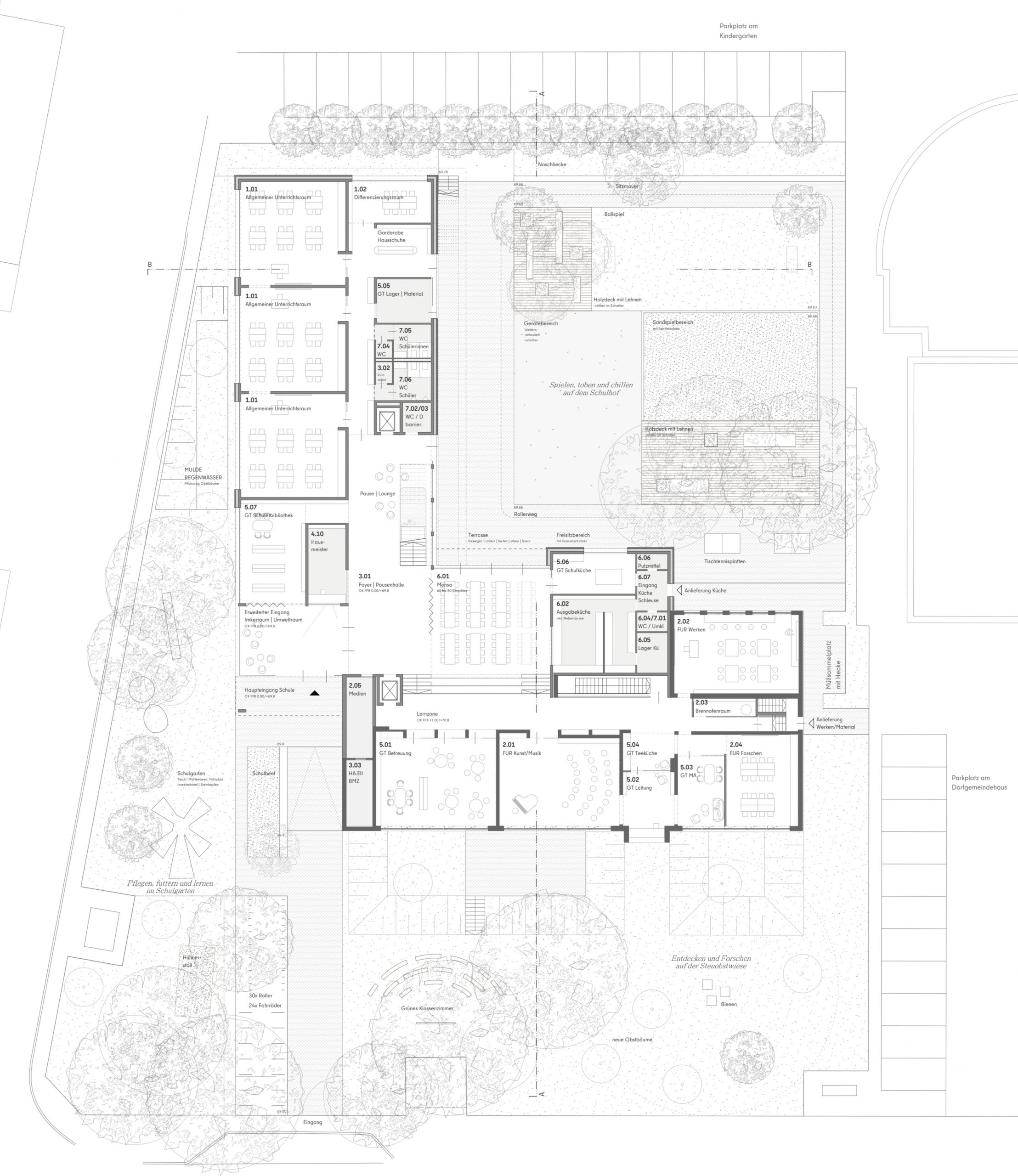
Auf­grund stei­gen­der Schü­ler­zah­len sowie aktu­el­ler päd­ago­gi­scher und bau­li­cher Anfor­de­run­gen plan­te die Samt­ge­mein­de die Erwei­te­rung der Müh­len­berg­schu­le in Osloß. Das bestehen­de Schul­ge­bäu­de aus dem Jahr 1957 wur­de bereits mehr­fach erwei­tert und soll­te nun um ca. 700 m² Net­to­grund­flä­che ergänzt werden.

Geplant waren sechs zusätz­li­che Unter­richts­räu­me, erwei­ter­te Toi­let­ten­an­la­gen, ein ver­grö­ßer­tes Leh­rer­zim­mer sowie zusätz­li­che Räu­me für die Ganz­tags­be­treu­ung, Fach­un­ter­richt, Biblio­thek und Mate­ri­al­la­ger. Ein zen­tra­les Ziel war die bar­rie­re­freie Gestal­tung des gesam­ten Schul­stand­orts, da die­se bis­lang nicht gewähr­leis­tet war.

Die Müh­len­berg­schu­le folgt dem Leit­bild „Gemein­sam geht’s bes­ser“ und wur­de als Inter­na­tio­na­le Nach­hal­tig­keits­schu­le aus­ge­zeich­net. Pro­jek­te wie Schul­gar­ten, Müll­tren­nung, Wald-AG sowie enge Koope­ra­tio­nen mit dem ört­li­chen Kin­der­gar­ten und einem Pfle­ge­heim för­dern Umwelt­be­wusst­sein und sozia­les Mit­ein­an­der im Schulalltag.

Copy­right Bil­der: Kum­mer Lubk+Partner PartGmbB