Architektenwettbewerb „Grundschule Lauenförde“ in Boffzen

Ort: Lau­en­för­de
Datum der Aus­lo­bung: 06. Febru­ar 2025
Aus­ge­lobt durch: Samt­ge­mein­de Boff­zen – Der Samt­ge­mein­de­bür­ger­meis­ter
1. Preis: Bay­er & Stro­bel Archi­tek­ten PartGmbB, Kaiserslautern

Die Samt­ge­mein­de Boff­zen plan­te den Neu­bau der Grund­schu­le Lau­en­för­de mit dem Ziel, eine zeit­ge­mä­ße und zukunfts­si­che­re Lern­um­ge­bung zu schaf­fen. Das neue Schul­ge­bäu­de soll­te den aktu­el­len päd­ago­gi­schen, funk­tio­na­len und bau­li­chen Anfor­de­run­gen ent­spre­chen und zugleich ein offe­ner Ort des Ler­nens und der Begeg­nung sein.

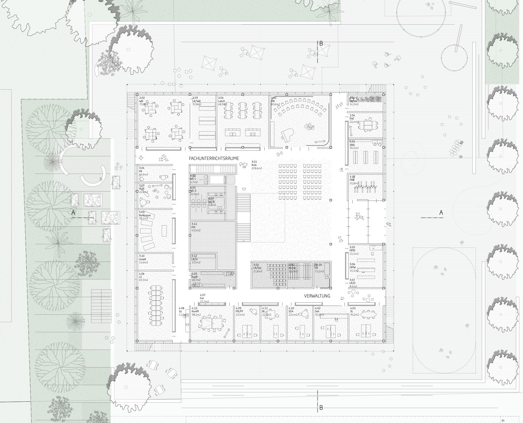
Vor­ge­se­hen war ein Schul­bau mit hel­len, fle­xi­bel nutz­ba­ren Räu­men, der moder­ne Lern­kon­zep­te unter­stützt und eine best­mög­li­che För­de­rung der Schü­le­rin­nen und Schü­ler ermög­licht. Aspek­te wie Inklu­si­on, Bar­rie­re­frei­heit, Nach­hal­tig­keit und eine gute tech­ni­sche Aus­stat­tung bil­de­ten zen­tra­le Bestand­tei­le der Planung.

Mit dem Neu­bau soll­te das Bil­dungs­an­ge­bot in der Regi­on nach­hal­tig gestärkt wer­den. Eine wohn­ort­na­he, qua­li­ta­tiv hoch­wer­ti­ge Grund­schu­le för­dert nicht nur die schu­li­sche Ent­wick­lung der Kin­der, son­dern trägt lang­fris­tig zur Attrak­ti­vi­tät der Samt­ge­mein­de und zur Iden­ti­fi­ka­ti­on der Fami­li­en mit ihrem Wohn­ort bei.

Copy­right Bil­der: Bay­er & Stro­bel Archi­tek­ten PartGmbB